2022年12月27日,國務院聯防聯控機制召開新聞發布會,介紹新冠病毒感染實施“乙類乙管”措施有關情況。會上通報,截至12月25日全國二級以上醫院發熱門診超過1.6萬個。本文以某醫院發熱門診為案例,詳細闡述了發熱門診的建設與管理要點,旨在提高綜合醫院和傳染病醫院對傳染病的應對能力。
壹 發熱門診布局
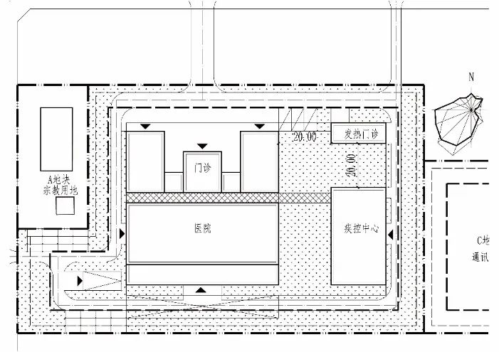
一 位置
醫院發熱門診的設置應納入醫院總體建設規劃,合理安排功能布局。二級及以上綜合醫院要在相對獨立的區域規范設置發熱門診。發熱門診應與外部聯系便捷,設有醒目的標識,具備獨立的出入口,與普通門(急)診相隔離,與其他建筑、公共場所保持適當間距,根據行業規范,發熱門診需要與周邊其他建筑保持20米以上的距離。
如圖1所示的某醫院發熱門診設計,在有限的用地面積內安排了醫院、疾控中心等建筑,發熱門診考慮其傳染性,獨立設置,位于下風向,與城市道路有便捷的聯系,與院區內醫院和疾控中心的距離都控制在20米以上,并設置有一定的物理隔離設施,滿足規范要求。

圖1 發熱門診區位規劃
二 布局
01 “三區兩通道”原則
發熱門診按照“三區兩通道”的布局符合醫院感控要求。“三區”是指污染區、潛在污染區和清潔區,“三區”能夠保證在做好個人防護的情況下減少醫護間、醫患間的交叉感染(圖2)。“兩通道”是指發熱門診區域中規劃的醫務人員通道和患者通道。在設計時將醫務人員出入口和通道設置在清潔區一側,患者出入口和通道設置在污染區一側,兩通道設計使所有人員活動路線符合管理規范,降低交叉感染的風險(圖3)。
① 污染區
污染區分為主要功能區和輔助區,主要功能區域包括候診區、診室、留觀室、護士站、治療室等,輔助區包括預檢分診區、掛號、收費、藥房、檢驗、放射、標本采集室、衛生間、污物保潔和醫療廢物暫存間等。
② 潛在污染區
潛在污染區主要包括污染防護用品脫卸的緩沖間、消毒物資儲備庫房等。
③清潔區
清潔區包括醫生辦公室、值班室、清潔庫房、防護服穿著區、醫務人員更衣室、浴室、衛生間等。

圖2 “三區”布局

圖3 “兩通道”布局
02 主要空間設計要點
① 預檢分診臺
預檢分診臺設置于患者入口門廳處,靠近入口,標識醒目,能夠有效引導患者進行信息登記、等候、診斷、檢查和檢驗。
② 候診區
候診區一般為相對獨立的開放區域,面積應大于20平方米,通風良好,必要時可加裝機械通風裝置。三級醫院應設置可容納不少于30人候診的空間,二級醫院應設置可容納不少于20人候診的空間。同時在患者入口處的外部空間預留足夠的面積搭建臨時候診區,滿足候診的需求。
③診室
診室設置為單人診室,采取一醫一患的就診模式,并至少設有1間備用診室。診室面積盡可能寬敞,能夠擺放一張診查桌、一張診查床以及流動水洗手設施,并安裝獨立電話保持聯系。
④留觀病房
發熱門診應按照要求和相應規范設置留觀病房,建議三級醫院留觀病房不少于15間,二級醫院留觀病房不少于10間。留觀病房應按照單人單間的要求收治患者,設有獨立病房的新風系統,單獨設置衛生間,空調系統能夠保證病房內具備規定的負壓。
病房床頭設置中心供氧、中心吸引、壓縮空氣、呼叫系統、對講系統等設施的設備帶,設置門禁、網絡、監控、中央監護系統以及呼吸機、除顫儀等急救設備,可以實現對留觀病人的遠程監護。在醫務人員走廊與各病房連接處設置兩道緩沖門,同時設置雙門互鎖密閉傳遞窗,為患者傳遞食物、生活物品、藥物等,傳遞窗內設置紫外線消毒燈。
⑤ 檢查室
國家衛健委將 CT 檢查納入第五版《新型冠狀病毒感染的肺炎診療方案》中,因此有條件的發熱門診設置CT、DR等醫技檢查空間,在設計時CT機房布局應按照“三區兩通道”的要求設置污染區、潛在污染區和清潔區,區分醫護通道與患者通道,操作間最好具有隔室操作功能,避免操作醫生與患者直接接觸,醫生在操作間可以遠程操作檢查床,實現精準化定位,避免醫患之間發生交叉感染。
如果是改造使用的發熱門診,硬件條件無法滿足檢查需求時,需在醫院影像中心設置專用的發熱門診CT檢查機房,開辟專門路線,張貼醒目標識,由護士單人單趟陪同患者快速完成檢查,減少停留時間。
發熱門診需要設置檢驗室,對患者進行血常規、C-反應蛋白等血液方面的采集和檢驗。
貳 發熱門診管理
一 患者
發熱門診患者在就診時需要實行全封閉就診流程管理,原則上掛號、就診、收費、檢查、取藥等診療活動都在發熱門診內完成。如果改造的發熱門診沒有設置檢驗室,標本采集后應立即密封處理,第一時間運送至檢驗科。如果患者要前往發熱門診以外的地方進行檢查,按照 “距離最短、接觸人員最少、專人防護陪同”的原則,開辟專用通道,不與普通患者乘坐同部電梯,檢查室單人使用,醫護人員做好防護工作,患者所處環境嚴格按照要求進行消毒。
二 醫護人員
醫護人員工作時需要按照防護要求佩戴工作帽、穿工作服和一次性隔離衣、戴醫用防護口罩。當接觸患者血液、體液以及分泌物時,需要戴乳膠手套。在采集患者標本、氣管插管等操作時,有可能發生氣溶膠或引起分泌物噴濺,在需要進行上述防護隔離之外,還需要佩戴護目鏡以及防護面屏等,必要時可選用動力送風過濾式呼吸器。在進出發熱門診以及隔離病房時,應該按照要求穿脫個人防護裝備,在穿脫防護服時,應設有專人監督或互相監督,避免交叉感染。
三 其他
發熱門診區域內的醫療設備、界面、空氣及空調通風系統的消毒和醫療垃圾的處理,應符合《醫療機構消毒技術規范》等相關規定,并有相應的工作記錄。醫療垃圾的處理要求為“日產日清、分類收集、專區存放、密閉運送、無害化處理”[1],根據國家規定和醫院感控要求,發熱門診污染區和潛在污染區產生的醫療廢物和生活垃圾均按照醫療廢物進行處理,及時清理并做好記錄。
叁 發熱門診設備
一 通風排風及空調設施
發熱門診的空調系統應單獨設置,主要功能房間應該能夠通風,保持室內空氣流通,同時應具備機械通風的能力。通風不良的房間,可安裝不同方向的排風扇或其他機械排風設施,從不同方向進行排風,排風組織應按照從清潔區→潛在污染區→污染區的流向進行組織。
二 消毒設施
發熱門診內的功能空間應設置洗手設施,使用非手觸式的水龍頭。對功能區域內的醫療設備、物體表面、地面等部位進行消毒,配置空氣或氣溶膠消毒設施,例如全自動霧化空氣消毒機、過氧化氫消毒機、紫外線燈(車)、醫用空氣消毒機等。
三 信息化設備
發熱門診的建設離不開現代化的技術手段,結合大數據、互聯網、物聯網等現代技術,提高醫護人員的工作效率,減少交叉感染。發熱門診的建設在綜合布線階段需要設置與醫院HIS系統聯通的內外網系統、電子病歷系統、自動掛號收費系統、可視對講系統等。同時考慮使用遠程醫療技術,如遠程診斷、遠程輸注、呼吸機遠程聯機系統等,減少醫患之間的感染。
四 門禁系統
發熱門診需要設置出入口管控系統,對醫患通道、潔凈區與污染區進行隔離管理,使醫護人員通道和患者通道分開,避免交叉感染。在綜合布線時將門禁系統與消防報警系統設置為聯動,發生火災等緊急情況時能夠快速解除門吸動作,使人員能夠迅速疏散,符合消防規范的要求。
肆 增強傳染病應急處置能力
發熱門診獨立設置,在規劃布局時最好與急診等功能臨近,在疫情發生時,與急診、檢驗、檢查、手術、重癥監護等科室進行聯動,充分利用醫療資源,及時應對突發醫療事件,作為“平急結合”區域承擔疫情應急救治任務。因此現代醫院發熱門診建設應注重平急結合策略,平時應充分做好應急發生時的準備,增強傳染病應急處置能力。